Descrição
Recuperador a Lenha Volga 80 – EcoForest
O Volga 80 é a versão de 80 cm da gama encastrável Volga. Fornece 10,3 kW de potência com rendimento 81%, adequada para aquecer salas de média dimensão com bom aproveitamento da lenha. A estrutura é robusta, o interior é em vermiculite para melhor retenção de calor e o vidro serigrafado garante um visual limpo. Inclui convector de ar quente, regulação da entrada de ar, gaveta de cinzas de grande capacidade e acabamento antracite escuro.
CARACTERÍSTICAS TÉCNICAS DA SALAMANDRA A LENHA VOLGA 80
| Potência (kW): | 10,3 kW |
| Classe Energética: | A+ |
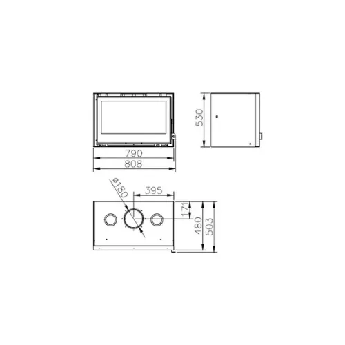
| Diâmetro Saída de Gases: | 180 mm |
| Consumo (g/h): | 2900 g/h |
| Rendimento: | 81% |
| Peso (kg): | 127 |
| Dimensões (L × A × P): |
808 × 530 × 395 mm |
PRINCIPAIS VANTAGENS:
-
Bom rácio potência/tamanho (10,3 kW num encastre de 80 cm).
-
Eficiência A+ com convector e câmara em vermiculite.
-
Manutenção facilitada: gaveta grande e sistema de limpeza por vácuo.
-
Controlo simples da combustão via regulação de ar e seletor frontal.
-
Acabamento antracite + vidro serigrafado para integração discreta.
INCLUI:
- Convetor de ar quente
- Interruptor seletor de três posições acessível pela frente
- Câmara de combustão reforçada em vermiculite
- Vidro da porta serigrafado
- Regulação da entrada de ar de combustão
- Vacuum cleaning system
- Acabamento em cinzento antracite escuro
- Gaveta das cinzas de grande capacidade
- Molduras decorativas opcionais












